Насосные бустерные станции Calpeda BS характеризуются высокой производительностью и простотой управления. Это высокоэффективное автоматическое насосное оборудование постоянного давления, которое состоит из насосов с переменной скоростью с частотным преобразователем в пульте и насосов с постоянной скоростью, установленных на общей раме. Также в конструкцию оборудования входят запорные и обратные клапаны, датчик давления, пульт управления и мембранный ресивер. Бустерные насосные станции Calpeda BS работают с производительностью от 1,5 до 570 м³/ч и формируют напор от 10 до 95 м. Все составляющие оборудования изготовлены из высококачественных материалов, которые устойчивы к коррозии, окислению и механическим повреждениям, что обеспечивает длительный рабочий ресурс насосов. Двигатель бустерных станции Calpeda BS мощностью от 0,45 до 55 кВт, напряжением 220 или 380 В работает с 2900 оборотами в минуту и рассчитан на продолжительный эксплуатационный период. Он бесперебойно функционирует даже при повышенных нагрузках. Бустерные насосные станции Calpeda BS эффективно используются в промышленности, строительстве, сфере ЖКХ и сельскохозяйственной отрасли. |
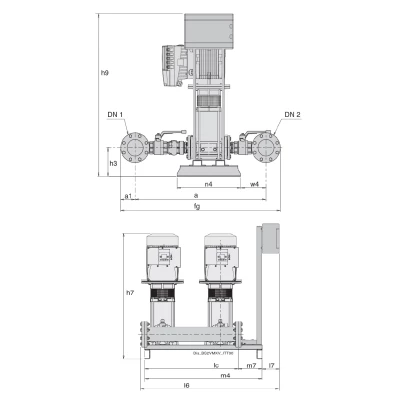
Габариты и размеры насосных бустерных станций Calpeda BS2V 2 MXV| Модель | a, мм | a1, мм | fG, мм | h2, мм | h3, мм | h7, мм | h9, мм | l6, мм | l7, мм | DN1 | DN2 | lc, мм | m4, мм | n4, мм | w4 |
|---|
| 80-4805 D | 1191 | 125 | 1441 | | 240 | 1299 | 1175 | 1170 | 145 | 125 | 125 | 750 | 950 | 550 | 279 | | 50-2005 ITT | 816 | 48 | 913 | | 225 | 1119 | 975 | 1142 | 700 | G 3 | G 3 | 700 | 82 | 550 | 82 | | 50-2006 ITT | 816 | 48 | 913 | | 225 | 1167 | 975 | 1142 | 700 | G 3 | G 3 | 700 | 82 | 550 | 82 | | 50-2007 ITT | 816 | 48 | 913 | | 225 | 1215 | 1175 | 1142 | 700 | G 3 | G 3 | 700 | 82 | 550 | 82 | | 50-2008 ITT | 816 | 48 | 913 | | 225 | 1367 | 1175 | 1142 | 700 | G 3 | G 3 | 700 | 82 | 550 | 82 | | 50-2009 ITT | 816 | 48 | 913 | | 225 | 1415 | 1175 | 1142 | 700 | G 3 | G 3 | 700 | 82 | 550 | 82 | | 65-3202 ITT | 1090 | 110 | 1310 | | 240 | 853 | 975 | 1114 | 145 | 100 | 100 | 750 | 950 | 550 | 231 | | 65-3203 ITT | 1090 | 110 | 1310 | | 240 | 947 | 975 | 1114 | 145 | 100 | 100 | 750 | 950 | 550 | 231 | | 65-3204 ITT | 1090 | 110 | 1310 | | 240 | 993 | 975 | 1204 | 145 | 100 | 100 | 750 | 950 | 550 | 231 | | 65-3205 ITT | 1090 | 110 | 1310 | | 240 | 1189 | 1175 | 1204 | 145 | 100 | 100 | 750 | 950 | 550 | 231 | | 65-3206 ITT | 1090 | 110 | 1310 | | 240 | 1235 | 1175 | 1204 | 145 | 100 | 100 | 750 | 950 | 550 | 231 | | 65-3207 ITT | 1090 | 110 | 1310 | | 240 | 1306 | 1175 | 1204 | 145 | 100 | 100 | 750 | 950 | 550 | 231 | | 80-4802 C | 1191 | 125 | 1441 | | 240 | 940 | 1175 | 1080 | 145 | 125 | 125 | 750 | 950 | 550 | 279 | | 80-4803 C | 1191 | 125 | 1441 | | 240 | 1001 | 1175 | 1170 | 145 | 125 | 125 | 750 | 950 | 550 | 279 | | 80-4804 D | 1191 | 125 | 1441 | | 240 | 1212 | 1175 | 1170 | 145 | 125 | 125 | 750 | 950 | 550 | 279 | | 50-2004 ITT | 816 | 48 | 913 | | 225 | 967 | 975 | 1142 | 700 | G 3 | G 3 | 700 | 82 | 550 | 82 | | 80-4806 D | 1191 | 125 | 1441 | | 240 | 1360 | 1175 | 1170 | 145 | 125 | 125 | 750 | 950 | 550 | 279 | | 80-4807 E | 1191 | 125 | 1441 | | 240 | 1498 | 1175 | 1170 | 145 | 125 | 125 | 750 | 950 | 550 | 279 | | 100-6501 A-ITT | 1543 | 142.5 | 1883 | | 370 | 1302 | 1175 | 1170 | 145 | 150 | 150 | 950 | 1300 | 1050 | 260 | | 100-6502 R/A-ITT | 1543 | 142.5 | 1883 | | 370 | 1394 | 1175 | 1170 | 145 | 150 | 150 | 950 | 1300 | 1050 | 260 | | 100-6502 A-ITT | 1543 | 142.5 | 1883 | | 370 | 1534 | 1175 | 1170 | 145 | 150 | 150 | 950 | 1300 | 1050 | 260 | | 100-6503 R/A-ITT | 1543 | 142.5 | 1883 | | 370 | 1651 | 1175 | 1170 | 145 | 150 | 150 | 950 | 1300 | 1050 | 260 | | 100-6503 B-ITT | 1543 | 142.5 | 1883 | | 370 | 1705 | 1175 | 1170 | 145 | 150 | 150 | 950 | 1300 | 1050 | 260 | | 100-6504 R/B-ITT | 1543 | 142.5 | 1883 | | 370 | 1797 | 1175 | 1170 | 145 | 150 | 150 | 950 | 1300 | 1050 | 260 | | 100-6504 A-ITT | 1543 | 142.5 | 1883 | | 370 | 1797 | 1175 | 1170 | 145 | 150 | 150 | 950 | 1300 | 1050 | 260 | | 100-9001 A-ITT | 1543 | 170 | 1883 | | 370 | 1306 | 1175 | 1170 | 145 | 200 | 200 | 950 | 1300 | 1050 | 260 | | 100-9002 R/A-ITT | 1543 | 170 | 1883 | | 370 | 1538 | 1175 | 1170 | 145 | 200 | 200 | 950 | 1300 | 1050 | 260 | | 100-9002 A-ITT | 1543 | 170 | 1883 | | 370 | 1563 | 1175 | 1170 | 145 | 200 | 200 | 950 | 1300 | 1050 | 260 | | 100-9003 R/B-ITT | 1543 | 170 | 1883 | | 370 | 1709 | 1175 | 1170 | 145 | 200 | 200 | 950 | 1300 | 1050 | 260 | | 100-9003 A-ITT | 1543 | 170 | 1883 | | 370 | 1709 | 1175 | 1170 | 145 | 200 | 200 | 950 | 1300 | 1050 | 260 | | 40-905 ITT | 740 | 40 | 820 | 238 | 124 | 781 | 884 | 825 | 200 | G 1 1/2 | G 1 1/2 | 600 | 625 | 365 | 200 | | 25-305 ITT | 589 | 26.5 | 642 | 170 | 94 | 690 | 884 | 825 | 200 | G 1 1/2 | G 1 1/2 | 600 | 625 | 365 | 140 | | 25-306 ITT | 589 | 26.5 | 642 | 170 | 94 | 714 | 884 | 825 | 200 | G 1 1/2 | G 1 1/2 | 600 | 625 | 365 | 140 | | 25-307 ITT | 589 | 26.5 | 642 | 170 | 94 | 738 | 884 | 825 | 200 | G 1 1/2 | G 1 1/2 | 600 | 625 | 365 | 140 | | 25-308 ITT | 589 | 26.5 | 642 | 170 | 94 | 762 | 884 | 825 | 200 | G 1 1/2 | G 1 1/2 | 600 | 625 | 365 | 140 | | 25-310 ITT | 589 | 26.5 | 642 | 170 | 94 | 811 | 884 | 825 | 200 | G 1 1/2 | G 1 1/2 | 600 | 625 | 365 | 140 | | 25-312 ITT | 589 | 26.5 | 642 | 170 | 94 | 899 | 884 | 825 | 200 | G 1 1/2 | G 1 1/2 | 600 | 625 | 365 | 140 | | 32-504 ITT | 589 | 26.5 | 642 | 170 | 94 | 666 | 884 | 825 | 200 | G 1 1/2 | G 1 1/2 | 600 | 625 | 365 | 168 | | 32-505 ITT | 589 | 26.5 | 642 | 170 | 94 | 690 | 884 | 825 | 200 | G 1 1/2 | G 1 1/2 | 600 | 625 | 365 | 168 | | 32-506 ITT | 589 | 26.5 | 642 | 170 | 94 | 714 | 884 | 825 | 200 | G 1 1/2 | G 1 1/2 | 600 | 625 | 365 | 168 | | 32-507 ITT | 589 | 26.5 | 642 | 170 | 94 | 738 | 884 | 825 | 200 | G 1 1/2 | G 1 1/2 | 600 | 625 | 365 | 168 | | 32-508 ITT | 589 | 26.5 | 642 | 170 | 94 | 802 | 884 | 825 | 200 | G 1 1/2 | G 1 1/2 | 600 | 625 | 365 | 168 | | 32-510 ITT | 589 | 26.5 | 642 | 170 | 94 | 851 | 884 | 825 | 200 | G 1 1/2 | G 1 1/2 | 600 | 625 | 365 | 168 | | 32-512 ITT | 589 | 26.5 | 642 | 170 | 94 | 915 | 884 | 825 | 200 | G 1 1/2 | G 1 1/2 | 600 | 625 | 365 | 168 | | 40-904 ITT | 740 | 40 | 820 | 238 | 124 | 711 | 884 | 825 | 200 | G 1 1/2 | G 1 1/2 | 600 | 625 | 365 | 200 | | 25-304 ITT | 589 | 26.5 | 642 | 170 | 94 | 666 | 884 | 825 | 200 | G 1 1/2 | G 1 1/2 | 600 | 625 | 365 | 140 | | 40-906 ITT | 740 | 40 | 820 | 238 | 124 | 811 | 884 | 825 | 200 | G 1 1/2 | G 1 1/2 | 600 | 625 | 365 | 200 | | 40-907 ITT | 740 | 40 | 820 | 238 | 124 | 857 | 884 | 825 | 200 | G 1 1/2 | G 1 1/2 | 600 | 625 | 365 | 200 | | 40-908 ITT | 740 | 40 | 820 | 238 | 124 | 887 | 884 | 825 | 200 | G 1 1/2 | G 1 1/2 | 600 | 625 | 365 | 200 | | 40-910 ITT | 740 | 40 | 820 | 238 | 124 | 947 | 884 | 825 | 200 | G 1 1/2 | G 1 1/2 | 600 | 625 | 365 | 200 | | 40-911 ITT | 740 | 40 | 820 | 170 | 94 | 977 | 884 | 825 | 200 | G 1 1/2 | G 1 1/2 | 600 | 625 | 365 | 200 | | 50-1503 ITT | 816 | 48 | 913 | | 225 | 934 | 975 | 1110 | 700 | G 3 | G 3 | 700 | 82 | 550 | 82 | | 50-1504 ITT | 816 | 48 | 913 | | 225 | 980 | 975 | 1110 | 700 | G 3 | G 3 | 700 | 82 | 550 | 82 | | 50-1505 ITT | 816 | 48 | 913 | | 225 | 1028 | 975 | 1110 | 700 | G 3 | G 3 | 700 | 82 | 550 | 82 | | 50-1506 ITT | 816 | 48 | 913 | | 225 | 1167 | 975 | 1110 | 700 | G 3 | G 3 | 700 | 82 | 550 | 82 | | 50-1507 ITT | 816 | 48 | 913 | | 225 | 1215 | 1175 | 1110 | 700 | G 3 | G 3 | 700 | 82 | 550 | 82 | | 50-1508 ITT | 816 | 48 | 913 | | 225 | 1263 | 1175 | 1110 | 700 | G 3 | G 3 | 700 | 82 | 550 | 82 | | 50-1509 ITT | 816 | 48 | 913 | | 225 | 1311 | 1175 | 1110 | 700 | G 3 | G 3 | 700 | 82 | 550 | 82 | | 50-1510 ITT | 816 | 48 | 913 | | 225 | 1359 | 1175 | 1110 | 700 | G 3 | G 3 | 700 | 82 | 550 | 82 | | 50-2003 ITT | 816 | 48 | 913 | | 225 | 932 | 975 | 1142 | 700 | G 3 | G 3 | 700 | 82 | 550 | 82 |
|  Эскиз габаритов насосных бустерных станций Calpeda BS2V 2 MXV |